Villa a schiera in vendita

Toano, Via Don Giorgio Canovi
€ 120.000
5 locali 5 locali
235 Mq 235 Mq
4 bagni 4 bagni

Villa a schiera in vendita

Toano, Via Don Giorgio Canovi

Descrizione annuncio

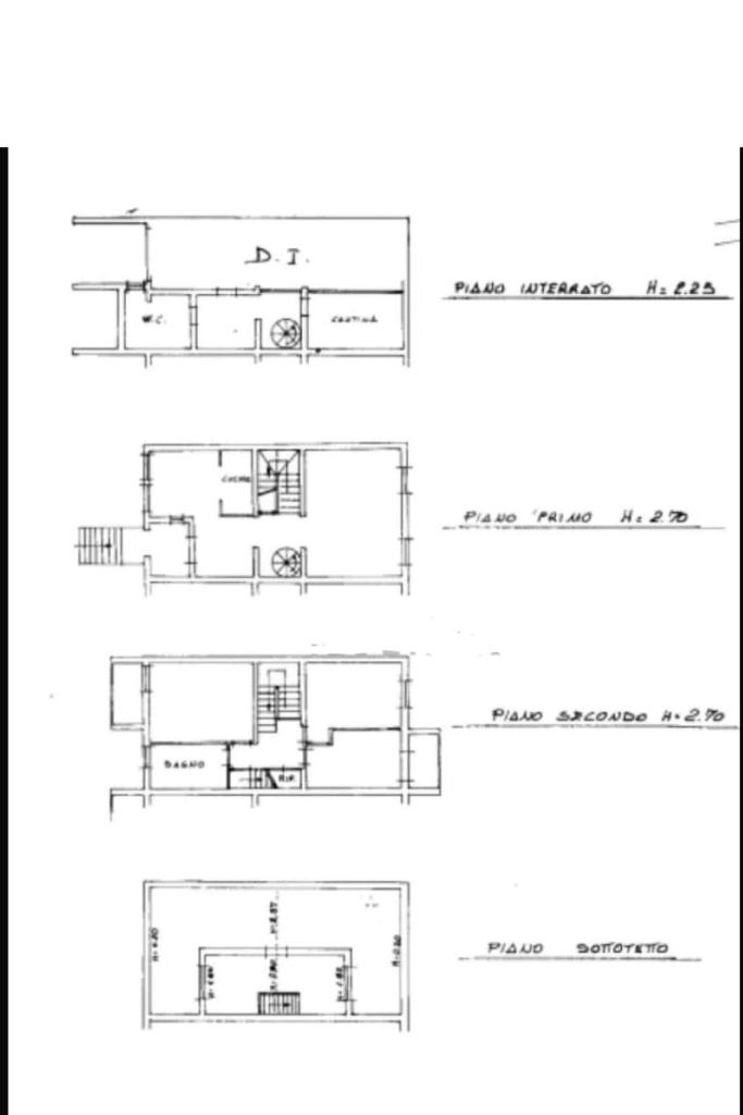
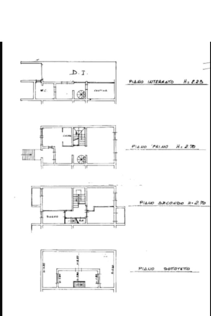
TOANO: In zona tranquilla a 400 mt. dal centro, villa a schiera di testa con piano di circa 80 mq. Composta da: Piano seminterrato: garage doppio lungo 12 ampia cantina e lavanderia/bagno; Piano rialzato Portico, ingresso, tinello, cucinotto, bagnetto sottoscala e soggiorno di 28 con portafinestra sul giardino privato di circa 80 Piano Primo, tre camere, bagno, due balconi e ripostiglio; Piano secondo: Mansarda di 16 con bagno e sottotetti. Area privata anche sul davanti. Costruzione originale del 1984, ma in buone condizioni e abitabile. Riscaldamento con radiatori a gas metano. Distanze: Cerredolo 8 km: Roteglia 20 Km, Sassuolo 31 Km.

Mostra tutto

Nelle vicinanze

Ristoranti Ristoranti
Ristorante La Collina
1,7 Km
Mostra tutto

Caratteristiche

Rif.:
61115108
Piano:
Basso di 3
Totale piani:
3
Box:
1
Posti auto:
2
Balconi:
2
Mostra tutto
Prezzo Prezzo
€ 120.000
Rata mutuo Rata mutuo
€ 570 / mese
Spese annue Spese annue
€ 0
Proponi il tuo prezzoProponi il tuo prezzo
Immobile valutato con T·Valuta

Classe Energetica

G
G
G
G
G
G
G
G
G
EP globale non rinnovabile:
469.00 kW h/m² anno
EP globale rinnovabile:
189.00 kW h/m² anno
EP invernale del fabbricato:
EP estiva del fabbricato:
Anno di costruzione:
1983
Riscaldamento:
Autonomo
Tipo impianto:
A radiatori
Tipo alimentazione:
Metano

Ti interessa visionare l'immobile?

Fissa un appuntamento  Fissa un appuntamento

Richiedi informazioni

Clicca su Leggi per aprire l'informativa
* Questi campi sono obbligatori

Calcola il tuo mutuo

Semplice e senza impegno
Anticipo

( % )
Mutuo

( % )

pochi semplici passi

inserisci i tuoi dati
Questionario completato
Grazie per aver richiesto un appuntamento senza impegno con un nostro Consulente del Credito e Assicurativo.

Hai inserito correttamente tutti i dati necessari e a breve riceverai una e-mail con un link da convalidare per inviare i tuoi dati.
Affiliato
Studio Canossa Srl
Via Canale, 1/B 42013 Casalgrande (RE)

Il nostro staff


  • Enrico Generali
    Affiliato

  • Christian Cecchelli
    Affiliato

  • Marco Lopez
    Collaboratore

  • Giovanni Rinaldi
    Collaboratore

  • Ramona Torricelli
    Collaboratrice
Via Canale, 1/B 42013 Casalgrande (RE)
Zona: Casalgrande-Salvaterra-Veggia-Villalunga-Dinazzano
Mostra su mappa
Orari: Lun-Ven 09.00-13.00/15.00-20.00 sab 09.00-13.00 pomeriggio su appuntamento
Affiliato
Studio Canossa Srl
Via Canale, 1/B 42013 Casalgrande (RE)

2026 Tecnocasa Franchising S.p.A. - P. IVA 08365160152 - Via Monte Bianco 60/A 20089 Rozzano (MI). Ogni agenzia ha un proprio titolare ed è autonoma. Privacy policy | Policy utilizzo | Cookie policy