Casa semindipendente in vendita

Carpineti, Via Savognatica - Savognatica
€ 12.000
Prezzo aggiornato
3 locali 3 locali
100 Mq 100 Mq
1 bagno 1 bagno

Casa semindipendente in vendita

Carpineti, Via Savognatica - Savognatica

Descrizione annuncio

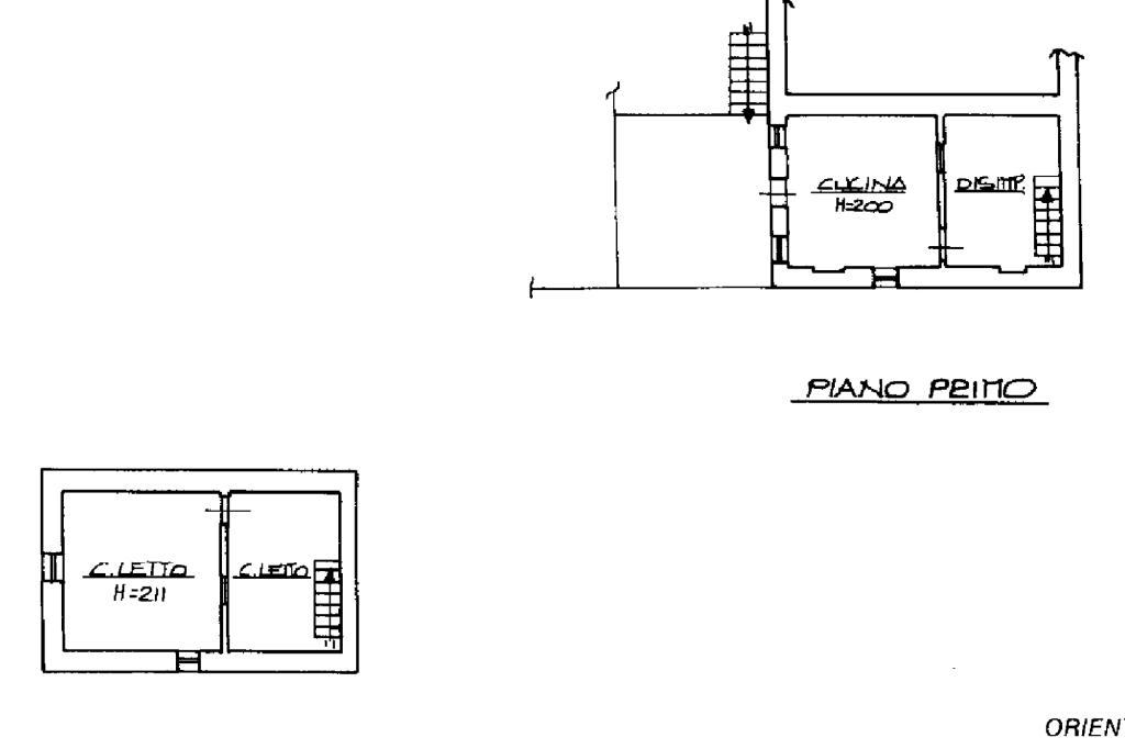
SAVOGNATICA: In posizione tranquilla a 600 mt. di altitudine, porzione di casa con esterno in sasso, sita all' interno della borgata. Superficie del piano, 37 mq. , composta da Piano terra con cantine e portico ad uso anche autorimessa di 18 mq. ; Piano primo: ingresso su terrazzo di 18 mq. , zona giorno, divisa in due ambienti; Piano secondo: due camere comunicanti. Completamente da ristrutturare, tetto e solaio del piano primo da fare. Posizione tranquilla, comoda alla fondovalle che si trova a 5 km. Altre distanze: Carpineti 4 km; Cerredolo 11 Km, Roteglia 22 km; Sassuolo 35 km.

Mostra tutto

Nelle vicinanze

Trasporto pubblico Trasporto pubblico
Trasporto pubblico
1,8 Km
Supermercati Supermercati
Carrefour express
1,7 Km
Negozi Negozi
Forno Gualtieri
1,7 Km
Bar Bar
Natal cafè
1,7 Km
Ristoranti Ristoranti
Ristoranti
1,0 Km
Bar Trattoria Vezzosi
2,8 Km
Mostra tutto

Caratteristiche

Rif.:
61167708
Piano:
2 di 2 (Piano basso)
Box:
1
Posti auto:
1
Terrazzi:
1
Camere da letto:
2
Mostra tutto
Prezzo Prezzo
€ 12.000
Rata mutuo Rata mutuo
€ 57 / mese
Spese annue Spese annue
€ 0
Proponi il tuo prezzoProponi il tuo prezzo

Classe Energetica

Questo immobile è esente da classe energetica
Anno di costruzione:
1930
Riscaldamento:
Assente

Prezzo ridotto di €1 (34%%)

Ti interessa visionare l'immobile?

Fissa un appuntamento  Fissa un appuntamento

Richiedi informazioni

Clicca su Leggi per aprire l'informativa
* Questi campi sono obbligatori

Calcola il tuo mutuo

Semplice e senza impegno
Anticipo

( % )
Mutuo

( % )

pochi semplici passi

inserisci i tuoi dati
Questionario completato
Grazie per aver richiesto un appuntamento senza impegno con un nostro Consulente del Credito e Assicurativo.

Hai inserito correttamente tutti i dati necessari e a breve riceverai una e-mail con un link da convalidare per inviare i tuoi dati.
Affiliato
Studio Canossa Srl
Via Canale, 1/B 42013 Casalgrande (RE)

Il nostro staff


  • Enrico Generali
    Affiliato

  • Christian Cecchelli
    Affiliato

  • Marco Lopez
    Collaboratore

  • Giovanni Rinaldi
    Collaboratore

  • Ramona Torricelli
    Collaboratrice
Via Canale, 1/B 42013 Casalgrande (RE)
Zona: Casalgrande-Salvaterra-Veggia-Villalunga-Dinazzano
Mostra su mappa
Orari: Lun-Ven 09.00-13.00/15.00-20.00 sab 09.00-13.00 pomeriggio su appuntamento
Affiliato
Studio Canossa Srl
Via Canale, 1/B 42013 Casalgrande (RE)

2026 Tecnocasa Franchising S.p.A. - P. IVA 08365160152 - Via Monte Bianco 60/A 20089 Rozzano (MI). Ogni agenzia ha un proprio titolare ed è autonoma. Privacy policy | Policy utilizzo | Cookie policy